Trova le risposte!
Le centrali nucleari. L'energia che scaturisce dal bombardamento dell'uranio con neutroni. Il processo di 'fissione/fusione nucleare'. Il problema della radioattività e delle scorie.

Altri articoli della stanza Sicurezza

Creato da Erio Piana « clicca sul nome per leggere il curriculum dell'autore

L’incidente di criticità avvenuto a Tokaimura - Erio Piana

Con questo articolo cercherò di dare una descrizione dettagliata ma comprensibile all’uomo della strada, di un incidente nucleare poco conosciuto alle persone comuni, avvenuto in Giappone nel settembre del 1999.
Cercherò di fare capire nel modo migliore possibile, seguendo le direttive IAEA (International Atomic Energy Agency) e di altri articoli scientifici, le cause dell’incidente, le misure di mitigazione e l’impatto sulla salute pubblica, evidenziandone gli aspetti positivi e negativi, in modo da fare capire come l’industria nucleare nonostante abbia un database non ricco di informazioni incidentali (proprio perché da progetto evita che l’incidente avvenga con probabilità fino all’ordine di 10-9 incidenti /anno) impari da ogni anomalia avvenuta in modo da non doverla più affrontare o a gestirla al meglio se si dovesse malauguratamente riverificare.

Localizzazione


Tokaimura è una cittadina situata a 120 Km a nord di Tokio nella prefettura di Ibaraki dove è localizzata la Facility, atta al riprocessamento di combustibile nucleare (1). Quindi il sito è una piccola fabbrica e non una Nuclear Power Plant, di proprietà della società JCO (controllata dalla Sumitomo Metals and Mining).
Il sito JCO in Tokaimura inoltre è vicino alla città di Naka-Machi e nel raggio di 10 Km dalla facility risiedono 310000 persone.



Fig.1 Localizzazione geografica della Facility di Tokaimura (IAEA)

Il 30 settembre tre operai stavano preparando un lotto limitato di carburante per il reattore sperimentale (Fast Breeder Reactor) (2) il cui combustibile è chiamato Joyo (che in giapponese significa fuoco eterno), utilizzando URANIO arricchito al 18,8% di U-235 fissile, quando normalmente trattavano arricchimenti dell’ordine del 5% per reattori termici, PWR e BWR della filiera Giapponese.
E’ stato il primo lotto di combustibile Joyo che arrivò in tre anni alla JCO, e le qualifiche non erano adeguate e nemmeno i requisiti di formazione non erano stati istituiti per preparare i lavoratori al compito. Essi infatti, avevano precedentemente utilizzato questa procedura molte volte con arricchimenti molto più bassi (massimo 5%), e non avevano la capacità di comprensione delle implicazioni di possibile criticità dovuta ad un arricchimento del 18,8% (quindi mancava la cultura nucleare di base, che non era stata fornita ai lavoratori).
Verso le 10:35, quando il volume di soluzione nel serbatoio precipitazioni, ha raggiunto circa 40 litri, conteneva circa 16,6 kg di Uranio, massa critica (3) è stata raggiunta.

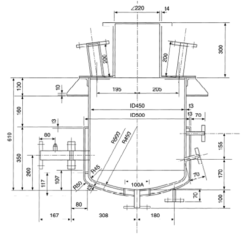
Fig.2 Disegno con quote della dissolution tank (IAEA)

Al punto di criticità, la reazione a catena di FISSIONE NUCLEARE è diventata autosostenente e ha cominciato a emettere intense radiazioni gamma e neutroni, scatenando allarmi. Non c’è stata nessuna esplosione, ma i prodotti di fissione sono stati progressivamente rilasciati all'interno dell'edificio.

 

Fig.3 Visuale esterna dell’edificio di riprocessamento (IAEA)

 

L’incidente è legato al fatto che il processo eseguito dalla JCO nella Facility è a umido, quindi l'acqua nella soluzione ha fornito la necessaria moderazione dei neutroni, la quale ha consentito l’attuarsi della reazione e per questo che la maggior parte degli impianti per la preparazione del combustibile usa processi a secco e automatizzati per motivi di sicurezza.

L'incidente è stato classificato di Livello 4, con riferimento alla International Nuclear Event Scale (INES) dall’Agenzia Internazionale dell‘Energia Atomica (IAEA), che indica un evento senza rischio significativo al di fuori del sito, in quanto è stato essenzialmente un “incidente di irradiazione”, non un “incidente di contaminazione”, in quanto non ha comportato alcuna emissione di sostanze radioattive solide.

 

 


Fig.4 Classificazione degli incidenti nucleare più gravi in scala INES

 

La Scala INES è logaritmica, quindi  tra il 4° e il 7° livello vi è un fattore 103 nella gravità dell’incidente.

 

Negligenza nelle procedure di esercizio

 

La funzione principale della facility è quella di convertire l'esafluoruro di URANIO (UF6) in combustibile di biossido di URANIO (UO2) per alcuni degli impianti nucleari commerciali del Giappone.
Il combustibile classicamente trattato nella struttura JCO di Tokaimura è URANIO arricchito e contiene fino al 5% dell'isotopo fissile U-235.
Inoltre, l'impianto della JCO di tanto in tanto purifica URANIO che deve essere trasformato in combustibile per un reattore sperimentale FBR (Fast Breeder Reactor della Filiera Monju) conosciuto come Joyo, che richiede combustibile arricchito al 18,8% di U-235.
Per questi livelli più elevati di arricchimento, si deve essere molto più attenti a causa della maggiore probabilità di accumulare massa critica, cioè U-235 tanto che almeno un neutrone da ogni fissione, in media, stimola un'altra fissione.
Regolamenti STA (Science and Technology Agency) pongono un limite di massa di 2,4 kg per la quantità del 18,8% di URANIO arricchito che possono essere trasformati in una sola volta presso l'impianto  di JCO.
Tuttavia, i lavoratori ci hanno aggiunto un totale di circa 16,6 kg per il serbatoio, causando una reazione a catena auto sostenente.


La criticità è continuata ad intermittenza per circa 20 ore

 

La soluzione, durante l’incidente di criticità, in funzione del riscaldamento creava vuoti nel moderatore e la criticità cessava, ma appena si raffreddava e scomparivano i vuoti, la reazione riprendeva.
La reazione è stata interrotta quando il raffreddamento ad acqua che circonda la vasca pluviometrica è stato svuotato, in quanto questa acqua faceva anche da riflettore di neutroni4, processo attuato dopo le inserzioni di Acido Borico acquoso.

 

Fig.5 Equivalente di dose da neutroni e gamma in funzione del tempo (RPD Nuclear Technology Publishing)


Una soluzione di acido borico (assorbitore di neutroni) è stata finalmente aggiunta al serbatoio per garantire che il contenuto rimanesse sottocritico, in parallelo all’estrazione dell’acqua dal circuito di raffreddamento. Queste operazioni hanno portato alla radio-ESPOSIZIONE di 27 lavoratori.

 

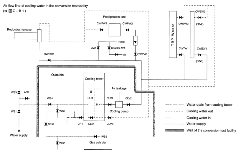
Fig.6 Schema dell’impianto di raffreddamento dell’edificio di riprocessamento (IAEA)

 

Il compito successivo è stato quello di installare degli schermi per proteggere le persone all'esterno degli edifici dalle radiazioni gamma generate dai prodotti di fissione presenti nel serbatoio. La radiazione di fissione neutronica era cessata. La radiazione (neutroni e gamma) proveniva quasi interamente dal serbatoio, non da dispersione di materiali.

 

 

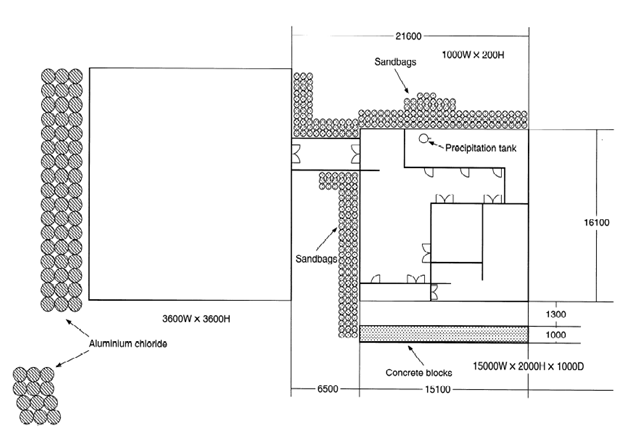
Fig.7 Disposizione dei sacchi di sabbia e di cloruro di alluminio (IAEA)

 

Edifici e impianti di trasformazione come questo, in ambito nucleare, sono normalmente mantenuti a una pressione inferiore a quella atmosferica in modo che l'aria e ciò che in essa può essere contenuto rimanga all'interno, e qualsiasi contaminazione venga rimossa da filtri d’aria collegati ad un tubo di scarico . In questo caso le particelle di radionuclidi generate all'interno dell'edificio di conversione sono state raccolte dai filtri ad alta EFFICIENZA per il PARTICOLATO atmosferico (HEPA), anche se è opportuno far notare che i gas nobili non vengono trattenuti da nessun filtro, proprio per le loro proprietà chimiche (ottetto completo nel guscio elettronico più esterno) e quindi non interagiscono con nulla.

 

Fig.8 Rateo di Dose da Neutroni durante il processo di mitigazione
(RPD Nuclear Technology Publishing)

 

Una prova di fumo, il 5 ottobre ha confermato che la pressione negativa fu mantenuta (vale a dire l'integrità strutturale dell'edificio era soddisfacente) e il sistema di ventilazione stava lavorando a dovere.
Tuttavia, a causa della presenza di I-131 che poteva essere rilasciato verso l'ambiente attraverso lo scarico, seppure a bassi livelli, fu in seguito deciso di interrompere la ventilazione e far valere il confinamento passivo fornito dalla costruzione.
5 ore dopo l'inizio della criticità, sono state evacuate circa 161 persone da 39 nuclei familiari all'interno di un raggio di 350 metri dall’edificio di conversione. Essi sono stati autorizzati al rientro a casa due giorni dopo.
Dodici ore dopo l'inizio dell’incidente, i residenti entro 10 km sono stati invitati a rimanere in casa a titolo precauzionale, e questa restrizione è stata revocata il pomeriggio seguente.

 

Fig.9 Raggio di 350 m dall’edificio di conversione (IAEA)


Nella prima parte dello schema si evidenzia la procedura approvata dall’Agenzia per la Scienza e la Tecnologia Giapponese (STA). Ossido di URANIO e acido nitrico sono inseriti attraverso un serbatoio, per poi dissolversi in un serbatoio tampone.
Nella seconda parte dello schema si mette in luce la procedura aziendale avviata non approvata dal STA, in cui si aggiungono l'ossido di URANIO e acido nitrico da secchio direttamente al serbatoio di accumulo, oppure secchi scaricati direttamente nel serbatoio di precipitazione, con una deviazione ulteriore dalla procedura licenziata.

L'ossido di URANIO (U3O8) sotto forma di polvere viene posto in un serbatoio di dissoluzione, dove è miscelato con acido nitrico per la produzione di nitrato di uranile, o UO2(NO3)2, che viene poi trasferito ad un serbatoio di accumulo.
Da qui, viene inviato nel serbatoio precipitazioni, dove si aggiunge ammoniaca per formare un prodotto solido (con contaminanti che rimangono in soluzione).

 


Fig.10 Schema del procedimento STA e la procedura effettivamente usato in questo caso per la dissoluzione e precipitazione (IAEA)


L’ossido di URANIO è estratto dal composto solido, e il processo viene ripetuto fino a quando l'ossido diventa sufficientemente puro.
A quel punto, il nitrato di uranile nel serbatoio tampone viene spedito in un'altra struttura, dove viene preparato e reso biossido di uranio, che diventerà combustibile.
Il giorno dell'incidente di criticità, i lavoratori trattavano il combustibile nelle ultime fasi di questo processo. L'impianto JCO era atto a mescolare ossido di URANIO arricchito (U3O8) di grande purezza con acido nitrico per formare nitrato di uranile per la spedizione.

Durante questa operazione, i lavoratori hanno deviato dalla procedura di licenza in tre modi fondamentali.
 
• In primo luogo, per accelerare il processo, l'ossido misto e acido nitrico era in secchi da 10 litri anziché nel serbatoio di dissoluzione (così facendo, hanno seguito la pratica che JCO aveva scritto nel suo manuale, senza l'approvazione dell’STA).
• In secondo luogo, per convenienza, hanno aggiunto i contenuti del secchio al serbatoio di precipitazioni piuttosto che al serbatoio di accumulo. E 'stato un passo falso chiave, perché l'alta e stretta geometria del vaso di espansione escludeva problemi di criticità.
• In terzo luogo il riempimento della cisterna precipitazioni, dove gli addetti hanno aggiunto sette secchi, conteneva circa sette volte più URANIO di quello consentito dalla licenza STA. E 'stata la settima aggiunta che ha permesso alla miscela di diventare critica.

Si suppone che l’addetto incaricato di trattare il combustibile Joyo quel giorno fosse particolarmente sotto pressione: il capo sezione insisteva per completare il lotto CORRENTE prima dell’arrivo di una nuova squadra di lavoratori.
Inoltre, i lavoratori erano apparentemente non consapevoli dei limiti di massa di URANIO da aggiungere al serbatoio precipitazioni.

 

Raggiungere criticità

 

La massa critica minima per il combustibile solido al 18,8% di URANIO è di circa 46 kg. Ma la massa critica si riduce notevolmente se il combustibile è in soluzione perché atomi leggeri come l'idrogeno favoriscono il rallentamento dei neutroni termalizzandoli, rendendone più probabile l’assorbimento e favorendo quindi la fissione.
La massa critica è stata ulteriormente ridotta a Tokaimura, perché una camicia d'acqua che circondava il serbatoio precipitazione (camicia di raffreddamento ad acqua per eliminare il calore in eccesso generato dalla reazione chimica esotermica), perché favoriva le riflessioni dei neutroni verso il centro della reazione.
Un effetto secondario del rivestimento di acqua potrebbe essere stato quello di prolungare la reazione a catena, perché senza la camicia d'acqua di raffreddamento, il calore generato dalla reazione a catena avrebbe favorito la dissociazione dell'acqua in IDROGENO e ossigeno nella soluzione, diminuendo la sua densità e rallentando la sua velocità di reazione.
Con la camicia d'acqua in funzione, per rimuovere il calore da fissione tuttavia, la soluzione potrebbe essere stata mantenuta appena al di sopra della densità critica.
A giudicare dai livelli di radiazioni gamma e neutroni, misurati nei pressi del perimetro dello stabilimento, l'escursione di criticità è durata circa 20 ore, dopo di che, i livelli di radiazione sono scesi sotto i limiti di rilevazione. La reazione a catena è stata spenta, drenando l'acqua di raffreddamento fuori dalla camicia e messo in sicurezza con l'aggiunta di acido borico in grande quantità.


Fig.11 Rateo di dose equivalente da gamma, durante il processo di mitigazione (RPD Nuclear Technology Publishing)

 

Non ci fu un grosso rilascio di sostanze radioattive all'esterno, ma 119 persone furono contaminate da basse dosi di radiazioni di circa 1 mSv non superiori ai limiti consentiti dalla legislazione internazionale.
Il fondo naturale medio da radiazioni ionizzanti in Italia varia da 1 a 3 mSv in un anno.

 

 

 

 

Fig.12 Grandezze coinvolte nel raggiungimento della criticità (RPD Nuclear Technology Publishing)

 

ESPOSIZIONE a Radiazione

 

• La prima fonte di ESPOSIZIONE a radiazioni in un incidente di criticità è il flusso di neutroni e raggi gamma che promana direttamente dai nuclei di fissione in rapida decomposizione. Tale radiazione è più nociva per le persone che si trovano nelle vicinanze e decade con il quadrato della distanza.
 
• Un secondo contributo proviene dai prodotti di fissione volatili, come gli isotopi di Xeno, Krypton e Iodio. A Tokaimura, questi gas sono stati ventilati (un ventilatore di scarico non è stato chiuso fino al 12 ottobre), ma le concentrazioni di Xeno e Krypton si ritiene siano stati sotto i limiti prescritti. I livelli di Iodio-131 misurato l'8 ottobre erano circa il doppio di quelle consentite dalla normativa STA.
 
• Una terza fonte di radiazioni è l'attivazione di nuclei, o nuclei radioattivi, che si ha con l'assorbimento di neutroni e studi hanno riscontrato che il decadimento di attivazione dell’azoto atmosferico può contribuire fino a metà della dose totale, se le persone non vengono evacuate da dentro e attorno al sito dell’incidente di criticità.

Secondo la STA, ai tre operai nella stanza al momento della criticità nel serbatoio di precipitazione, è stata somministrata una dose di 17, 10, e 3 Sieverts6 (le dosi sono state dedotte dai livelli di sodio radioattivo (Na-24) nei corpi delle vittime).
La Tokyo Electric Power Company precipitò 400 kg di borato di sodio (Na2B4O7 • 10 H2O) nel contenitore per assorbire la radiazione emessa, ma i lavoratori hanno avuto difficoltà ad avvicinarsi alla vasca di trattamento.
I lavoratori poi rientrarono nell'impianto e interruppero i tubi dell'acqua che portavano alla vasca dove vi è stato l'incidente di criticità, consentendo così alla stessa di drenare. Questo ha permesso alla reazione nucleare di scemare.

Dosi di 10 e 17 Sv sono al di sopra dei livelli normalmente considerati fatali, ma i due lavoratori che hanno ricevuto dosi così elevate erano ancora vivi, ma nonostante essi siano stati curati con trapianti di cellule staminali e processi di sostituzione del sangue,il paziente A è deceduto dopo 83 giorni e il paziente B dopo 211 giorni.
Il lavoratore che ha ricevuto una dose di 3 Sv non ha richiesto trasfusioni e si è ripreso.
Oltre a questi tre casi gravi, ci sono stati 66 lavoratori privati coinvolti, i vigili del fuoco, e altri che hanno subito gli effetti dell'incidente, e alcuni residenti della città, che sono stati esposti a livelli misurabili di radiazioni. La maggior parte degli incidenti di criticità in passato, non hanno  coinvolto nelle esposizioni dei privati cittadini, ma l'impianto JCO è situato molto vicino alla città circostante. Nel raggio di 350 metri evacuati subito dopo l'incidente, vi erano 47 case e circa 161 persone.
Il rapporto finale sull'incidente IAEA, stima la dose massima misurata al pubblico in generale (compresi i residenti locali) a 16 mSv, e la dose massima a circa 21 mSv.
 

Fig.13 Numero di persone esposte direttamente coinvolte nell’incidente di criticità (IAEA)


I monitor collocati in una serie di siti al di fuori dell'impianto hanno rilevato i livelli di radiazione. In uno dei siti più vicini di monitoraggio, l’STA ha registrato ratei di dose di 4,5 mSv/h per neutroni e 0,50 mSv/h per i raggi gamma circa 11 ore dopo l'insorgenza della criticità.

 

Fig.14 Stazione per la rilevazione di gamma e neutroni (RPD Nuclear Technology Publishing)

 

Tale intensità di dose gamma è stata di circa 1000 volte superiore al normale livello di fondo.

 

 

Fig.15 e 16  Visuale da satellite del sito JCO e relativa planimetria con localizzazione stazioni monitoraggio di radiazioni ionizzanti (RPD Nuclear Technology Publishing)

 

L'entità dell'infortunio

 

Sulla base dei livelli osservati di radiazione neutronica, si è inizialmente stimato che la reazione a catena potrebbe avere coinvolto 1-8 x 1018 fissioni, in linea con una potenza di stato stazionario di 0,7-4 kWth. (La potenza termica di un reattore di potenza commerciale tipico è di circa 3000 MWth.)
Quindi, utilizzando le informazioni sui prodotti di fissione trovati nei campioni prelevati dal serbatoio di precipitazione il 20 ottobre, ha rivisto la sua stima di 1,8 - 2,8x1018 fissioni totali .
Una stima preliminare del livello di potenza raggiunto durante la criticità e quindi le emissioni radioattive massime, facendo alcune ipotesi circa il bilancio termico nel serbatoio, hanno portato alla conclusione che la reazione a catena ha generato calore in funzione del tempo di reazione, di circa 5-30 kWth.
A quel livello di potenza, può aver prodotto 30-180 Ci di Xe-133 e 10-60 Ci di I-131. (L'esplosione della centrale nucleare di Chernobyl 1986 in Ucraina emise 10-100x106 Ci di questi isotopi).
Inoltre è stato esaminato l'episodio di Tokaimura confrontandolo con 22 eventi di criticità negli impianti nucleari, ad esclusione degli Stati Uniti (tutti tranne uno verificatosi prima del 1964).
È stato trovato che il numero di fissioni generato dagli incidenti era abbastanza simile, ed era nell'intervallo di 1017-1019. Supponendo l'incidente di Tokaimura nella medesima localizzazione geografica, la stima delle emissioni di Iodio-131 che si sovrappongono con quelli calcolati da altri ricercatori.
Per finire, l'impatto radiologico sulla popolazione di Tokaimura non è probabilisticamente maggiore di quello avutosi per l'incidente nucleare nella centrale di Three Mile Island in Pennsylvania del 1979, cioè pressoché nullo visto che la radioattività oltre i limiti dell’impianto è da 1 a 2 ordini di grandezza minore del fondo naturale.

Sono state effettuate delle relazioni sugli incidenti di criticità di tutto il mondo, integrando i dati ora disponibili sugli incidenti nella ex Unione Sovietica, traendo le seguenti conclusioni:
• ciò che molti degli incidenti hanno avuto in comune sono stati errori nella comunicazione e formazione degli operatori, procedure improprie, errori nella gestione del materiale fissile, responsabilità e nuove o non familiari operazioni.
Partendo dalle normative degli Stati Uniti, si deduce che nell'incidente di Tokaimura, agenzie di regolamentazione e gestori degli impianti non sono stati diligenti nel seguire le procedure approvate.
L'intero impianto JCO e non solo l'operatività di purificazione, è stato chiuso e l’STA ha revocato la licenza di esercizio alla JCO per tutto l’impianto.

 

L’incidente vede coinvolti direttamente questi tre operai:

 

I tre lavoratori interessati sono stati ricoverati in ospedale, due in condizioni critiche.
• Uno deceduto 12 settimane dopo (Hisashi Ouchi, 35 anni, morto il 21 dicembre 1999 in seguito alle radiazioni assorbite).
• L’altro deceduto dopo 7 mesi (Masato Shinohara, 40 anni, che sebbene sia stato sottoposto a cure mediche intense ed innovative, è deceduto il 27 Aprile 2000).
• Mentre Yutaka Yokokawa, sopravvissuto grazie alle intense cure a cui è stato sottoposto, ma principalmente perché era colui che aveva ricevuto meno dose degli altri.
I tre avevano ricevuto dosi di radiazioni su tutto il corpo di 10-20 Sv, 6-10 Sv e 1-5 Sv7.

 

Fig.17 Ricostruzione con codici di calcolo montecarlo della posizione dei pazienti A e B.(RPD Nuclear Technology Publishing)


Dosi per ulteriori 436 persone sono state valutate, 140 basato sulla misurazione e 296 sui valori stimati.
Nessuno superava il 50 mSv (il massimo consentito di dose annuale a tutto il corpo per il lavoratore esposto), anche se 56 lavoratori dell'impianto esposti accidentalmente a distanza arrivavano a 23 mSv e altri 21 lavoratori hanno ricevuto dosi elevate quando è stato effettuato lo svuotamento della cisterna precipitazioni. 

7 lavoratori immediatamente al di fuori dell'impianto hanno ricevuto dosi stimate a 6-15 mSv (neutroni dovuti a effetti combinati della reazione e dei gamma).
Il numero totale di persone coinvolte nell’incidente è stato stimato a 667, con cui si tiene conto anche di tutti coloro che sono stati sottoposti alla contaminazione nel corso delle azioni di salvataggio e di decontaminazione.
I tre operai, Yutaka Yokokawa, Masato Shinohara, e Hisashi Ouchi sono stati esposti a radiazioni con importi di 3, 8, e 17 Sv rispettivamente. Essi hanno mostrato sintomi gravi, che includevano "vomito, diarrea, difficoltà a rimanere coscienti, alto conteggio dei globuli bianchi (25.000) e la febbre (JAIF, 32).
Shinohara ha ricevuto un trapianto del cordone ombelicale e trasfusioni di sangue, mentre Ouchi ha ricevuto due trapianti periferici di cellule staminali e trasfusioni. La dose a cui altri lavoratori sono stati sottoposti, sono state inferiori a 0,1 Sv ciascuno. 

Fig.18 Tecnici con rivelatori portatili nel perimetro esterno della facility. (RPD Nuclear Technology Publishing)

 

 

Mentre 160 TBq di gas nobili e 2 TBq di Iodio gassoso sono apparentemente stati rilasciati dalla reazione di fissione, poco è sfuggito dall'edificio stesso.
Dopo che la criticità era stata fermata e la schermatura era posta in opera, i livelli di radiazione al di là del sito JCO sono tornati alla normalità.
Solo poche tracce di radionuclidi sono stati rilevati nella zona subito dopo l'incidente, e questi erano quelli di breve durata (T1/2 di pochi giorni).
I prodotti della zona sono stati esaminati e considerati del tutto sicuri.
Livelli di radiazione misurata dal team dell'IAEA in zone residenziali a metà ottobre erano a livelli di fondo normale.
La misura dello I-131 nei suoli e nella vegetazione al di fuori dell’impianto ha mostrato di essere ben al di sotto dei livelli di preoccupazione per il cibo e acqua.
Dosi esterne in ambiente, di neutroni e raggi gamma sono stati stimati sulla base dei dati di monitoraggio delle radiazioni e dei calcoli di trasporto.
Le dosi accumulate sono state presentate in funzione del tempo e della distanza. Le stime sono ipotetiche dosi massime, quindi la dose delle persone che hanno soggiornato al di fuori della zona di 350 metri sarebbe stimato in meno di 1 mSv in quanto va considerato l'effetto di schermatura delle case.
Dosi individuali per le persone che soggiornano all'interno della zona dei 350 m, sono state valutate mediante l'applicazione di stime attuali e di fattori di TRASMISSIONE delle dosi con schermatura dovuta alle abitazioni, per l'indagine condotta dal National Institute of Radiological Science.

Fig.19 Rateo di dose equivalente ambientale per neutroni e gamma in funzione della distanza.(RPD Nuclear Technology Publishing)

 

Secondo la IAEA, l'incidente "sembra essere stato causato principalmente da errori umani e gravi violazioni dei principi di sicurezza, che insieme hanno portato a un evento di criticità".
La società ha ammesso di avere violato sia le norme di sicurezza normali che i requisiti di legge, e le accuse penali sono state poste in atto.
Il fatto che nell'impianto fosse in atto un'operazione al di fuori del ciclo del combustibile nucleare mainstream, evidentemente ha ridotto il livello di controllo.
I controlli di Stato avevano visitato l'impianto solo due volte l'anno, e mai durante il suo funzionamento.
La compagnia assicurativa giapponese della JCO avrebbe effettuato il pagamento della trance relativa all’incidente avvenuto. Tuttavia, questo pagamento sarebbe limitato a un miliardo di yen, e le ulteriori responsabilità (il totale stimato a 13 miliardi di yen - $ 200 milioni), saranno sostenute dalla JCO o dalla società controllante.

La licenza d'esercizio della società è stata revocata all'inizio del 2000.

I principali impianti di fabbricazione del combustibile in Giappone sono completamente automatizzati, progettati per garantire che le criticità non si verifichino, e dotati di sistemi di monitoraggio dei neutroni con completa preparazione per qualsiasi tipo di incidente di criticità possibile.
La maggior parte degli impianti utilizza processi a secco, in ogni caso, che è intrinsecamente più sicuro. Nessun reattore civile utilizza URANIO arricchito al 5% di U-235 o più.
Nel rapporto IAEA si ribadisce che l'incidente non ha presentato alcun rischio significativo di fuori del sito (IAEA, Prefazione). Questa conclusione si basa principalmente sul fatto che il team di ricerca, è stato in grado di confermare in modo indipendente che non vi era alcun danno evidente per l'integrità strutturale della costruzione di conversione JCO, in particolare, che il tetto era intatto e che i livelli di dose da gamma al di fuori del sito JCO erano normali (IAEA, p. 32).
Così, la IAEA valuta che la maggior parte delle radiazioni nocive sono state contenute all'interno del sito dell'incidente (IAEA, Prefazione).
Inoltre, il documento cita anche i dati acquisiti dai campioni che sono stati presi nelle vicinanze dello stabilimento entro i limiti della cittadina di Tokaimura, poi testati per varie forme di radiazione.
I campioni esaminati comprendevano sia acqua potabile che non potabile, vari prodotti agricoli, come ortaggi, pollame e frutti di mare, e campioni di suolo (IAEA, p. 24). Secondo la IAEA, i risultati di questi studi di campionamento indicano che non vi erano anormali livelli di radiazione presenti nei campioni prelevati (IAEA, p. 24).
Il rapporto afferma inoltre che le procedure di emergenza appropriate sono state intraprese durante e dopo l'incidente.
La relazione descrive accuratamente la sequenza delle azioni intraprese, eseguite in sequenza come da programma, per contrastare gli effetti dell'incidente di criticità (IAEA, pp. 27-28).

 

Ripercussioni finanziarie
 
Le ripercussioni finanziarie immediate dell'incidente nucleare di Tokaimura sono state evidenti.
Circa 400 famiglie e una società di prodotti agricoli locali, hanno chiesto al gestore dell'impianto di pagare loro un importo di oltre 650 milioni di yen, circa 6,5 milioni di dollari (Kyodo News Service, ottobre 19, 1999).
I contadini hanno ricevuto disdette per i loro prodotti e gli agricoltori hanno avuto perdite future.
Inoltre, la federazione della prefettura di Ibaraki per le cooperative di prodotti marini, ha anche invitato JCO Co. a risarcire con circa 600 milioni di yen, le perdite subite dopo l'incidente (il Daily Yomiuri, 22 ottobre 1999).
La gente che vive nella prefettura di Ibaraki in Giappone, dove si trova Tokaimura, ha bisogno di questi soldi per sopravvivere e mantenere le imprese in funzione.
Tuttavia, la minaccia di un aumento delle perdite finanziarie future, dal momento che gli ordini per i prodotti provenienti dalla regione di Tokaimura sono stati annullati, rimane anche per i prodotti fabbricati prima dell'incidente,anche se per essi l’impatto dovuto all’incidente stesso è nullo(Ignoranza).

 

Conseguenze disciplinari

 

Sei responsabili della JCO, compreso Kenzo Koshijima (56 anni), capo dell’impianto di processamento, sono stati giudicati colpevoli nel processo che iniziò nell’aprile del 2001.
Tomoyuki Inami, presidente della JCO, è stato sottoposto ad inchiesta in rappresentanza dell’intera azienda. Successivamente il governo giapponese ha revocato alla ditta JCO la licenza per procedere nella attività di raffinazione dell’uranio.
Il pubblico ministero ha chiesto 4 anni di carcere ed una multa di 500.000  Yen per Koshijima. E’ anche stato chiesto che l’azienda fosse sottoposta ad una penale di 1 milione di Yen.
Koshijima è stato condannato a 3 anni di prigione e al pagamento di 500.000 Yen di multa. Anche altri 5 imputati della JCO sono stati condannati a pene tra i due e i tre anni, poi sospese.
Durante il processo è emersa anche una certa responsabilità da parte degli organi governativi preposti ai controlli, incolpati di non aver praticato la giusta pressione sulla JCO. Comunque la colpa piena è stata attribuita al non rispetto delle procedure di sicurezza e quindi è andata a carico di coloro che non hanno addestrato a dovere i loro dipendenti.

Note:

1. Il riprocessamento consiste in un processo di dissoluzione delle barre di combustibile irraggiato in apposite soluzioni acide. In questo modo si rende possibile la separazione per via chimica dei diversi componenti del combustibile: le materie fissili (uranio e plutonio) che vengono recuperate per un eventuale riutilizzo e i prodotti di fissione che vanno a costituire i rifiuti ad alta attività, condizionati in una matrice vetrosa.
2. Il Fast Breeder o reattore veloce autofertilizzante (FBR) è un reattore a neutroni veloci progettato per generare carburante mediante la produzione di materiale più materiale fissile di quanta ne consuma. La FBR è uno dei possibili tipi di reattore breeder.
3. Si intende per massa critica la quantità di materiale fissile necessaria, affinché una reazione di FISSIONE NUCLEARE a catena possa auto sostenersi.

4. Per riflettore si intende un materiale che ha un comportamento fisico tale da favorire la non dispersione o fuoriuscita dei neutroni, generati dalla reazione di fissione all’interno del contenitore in esame.
5. L’utilizzo di sacchi di sabbia e di cloruro di alluminio, sono dovuti alla presenza di quei materiali nel sito JCO in primis e soprattutto vista la loro composizione chimica ricca di acqua quindi di idrogeno, come ulteriore mezzo di termalizzazione neutronica per ridurne l’impatto biologico nelle immediate vicinanze del contenitore di precipitazione dove la reazione a catena ha avuto inizio.

6. 1 Sievert, che è pari a 100 Rems, è una misura della risposta biologica alle radiazioni assorbite.

7. All’incirca 8 Sv normalmente è considerata una dose fatale

 

Referenze

REPORT ON THE PRELIMINARY FACT FINDING MISSION FOLLOWING THE ACCIDENT AT THE NUCLEAR FUEL PROCESSING FACILITY IN TOKAIMURA, JAPAN International Atomic Energy Agency (IAEA)

J. RADIAT. RES., 42: SUPPL., S137–S148 (2001) Calculation of the Absorbed Dose for the Overexposed Patients at the JCO Criticality Accident in Tokai-mura NOBUHITO ISHIGURE1, AKIRA ENDO2, YASUHIRO YAMAGUCHI2 and KIYOMITSU KAWACHI3

Radiation Protection Dosimetry Vol. 93, No. 3, pp. 207–214 (2001) Nuclear Technology Publishing EXTERNAL DOSES IN THE ENVIRONMENT FROM THE TOKAI-MURA CRITICALITY ACCIDENT
A. Endo, Y. Yamaguchi, Y. Sakamoto, M. Yoshizawa and S. Tsuda Department of Health Physics, Japan Atomic Energy Research Institute Tokai-mura, Ibaraki-ken 319–1195, Japan

J. RADIAT. RES., 42: SUPPL., S117–S128 (2001) Determination of Radionuclides Produced by Neutrons in Heavily Exposed Workers of the JCO Criticality Accident in Tokai-mura for Estimating an Individual’s Neutron Fluence YASUYUKI MURAMATSU1*, YUTAKA NODA1, HIDENORI YONEHARA1, NOBUHITO ISHIGURE1, SATOSHI YOSHIDA1, MASAE YUKAWA1, KEIKO TAGAMI1, TADAAKI BAN-NAI1, SHIGEO UCHIDA1, TOSHIYASU HIRAMA1, MAKOTO AKASHI1 and YUJI NAKAMURA1